info@vfstroy.ru
Москва, 1-й Кожевнический переулок, дом 6, строение 1, этаж 3
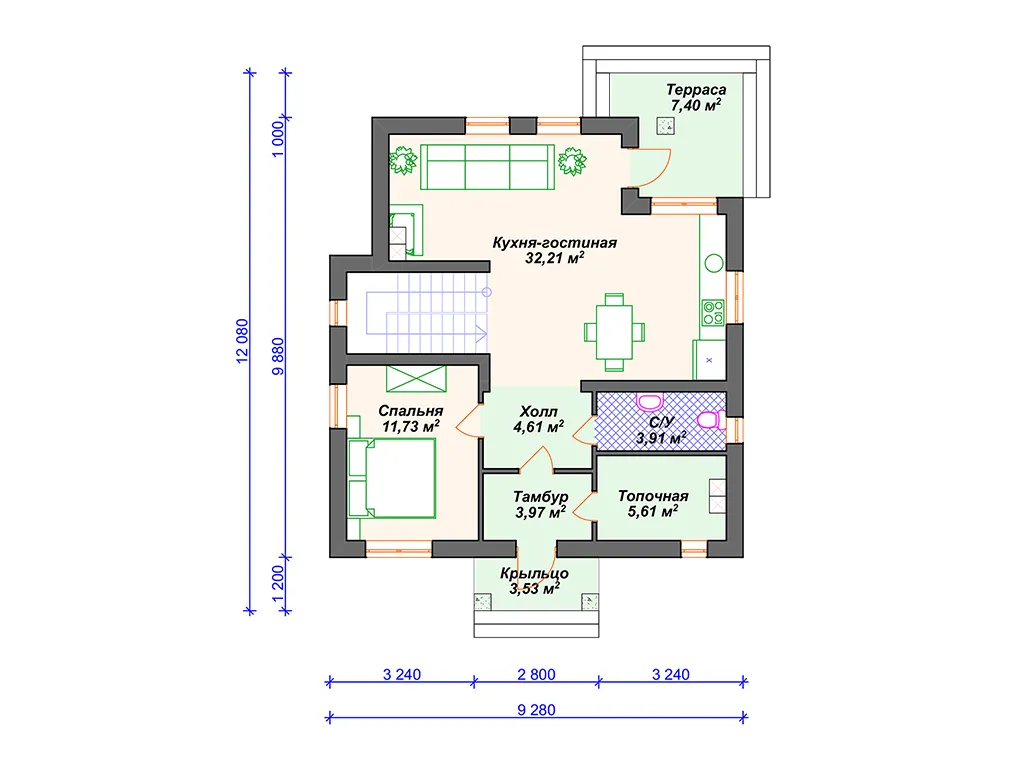
Проект каменного дома с террасой S4-136 (К-299)
Характеристики дома:
Площадь дома
136 m2
Кол-во жилых комнат
5
Стоимость проекта АР+КР
44,000 ₽
О проекте
Характеристики проекта S4-136 (К-299)
| Классификация архитектора | К-299 |
| Общая площадь | 136 м2 |
| Количество этажей | двухэтажный |
| Гараж | без гаража |
| Возможный материал кровли | металлочерепица, гибкая черепица, керамическая черепица, композитная черепица, цементно-песчаная черепица, фальцевая кровля |
| Количество жилых комнат | 5 |
| Тип перекрытий | по деревянным балкам |
| Материал стен | газобетон/пеноблоки, кирпич, керамические блоки, керамзитовые блоки, пеноблоки |