Проекты домов Оформить
ипотеку
Стройматериалы Участки Строительство
Выберите свой регион строительства
Крымский федеральный округ
Крым
Close mobile menu

Характеристики дома:

Площадь дома

134 m2

Кол-во жилых комнат

6+
Стоимость проекта АР+КР
44,400 ₽

Хотите изменить планировку?

Отправьте запрос архитектору и обсудите с ним ваши идеи по перепланировке.

О проекте

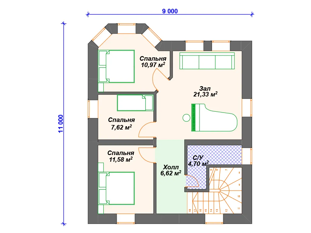
S4-134 (К-118) Дом прямоугольной формы, выполнен из газобетона, толщиной 300 мм, с отделкой наружных стен - облицовочный кирпич. Покрытие кровли - металлочерепица. Входим в дом с маленького крылечка и попадаем в тамбур из которого проходим в продолговатый холл 15.5 кв м. Сразу при входе по правой стороне расположена лестница на второй этаж, рядом маленький с/у 3 кв м. На этаже размещены две небольшие по площади комнаты - 7.6 кв м и 11.5 кв м. Пройдя прямо через холл проходим в зону гостиной 14 кв м совмещённую с кухней 9 кв м. Украшением гостиной служит эркер, состоящий из трёх окон, что делает не только краше фасад, но и дает очень много естественного освещения. Из кухни можно выйти на улицу, на задний двор дома. Так же из кухни предусмотрен вход в котельную, площадью 5.7 кв м. Поднимаемся на второй этаж по лестнице с забежными ступенями и проходим в холл 6.6 кв м, из которого сразу попадаем в просторное помещение 21 кв м, которое можно использовать как зону отдыха. На этаже три спальни и с/у. Отличный проект дома для круглогодичного проживания семьи из 4 человек.

Аккредитованы в ведущих банках

Корзина
Ваша корзина пуста
Выберите в каталоге интересующий товар и нажмите кнопку "В корзину"
Отложенные товары
Отложенных товаров нет
Выберите в каталоге интересующий товар и нажмите кнопку "В избранное"
Заказать звонок