Проекты домов Оформить
ипотеку
Стройматериалы Участки Строительство
Выберите свой регион строительства
Крымский федеральный округ
Крым
Close mobile menu

Характеристики дома:

Площадь дома

101 m2

Кол-во жилых комнат

4
Стоимость проекта АР+КР
36,300 ₽

Хотите изменить планировку?

Отправьте запрос архитектору и обсудите с ним ваши идеи по перепланировке.

О проекте

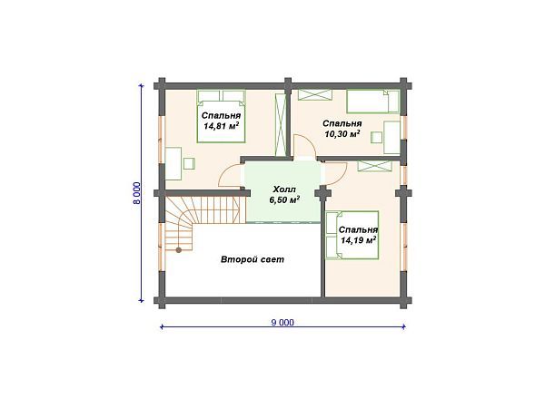
Деревянный дом почти квадратной формы, выполнен из бревна диаметром 260 мм. Конструкция крыши - двускатная. Вход в дом осуществляется с террасы 10.7 кв м накрытой одной крышей с домом.

Проходим в небольшой тамбур из которого попадаем в просторный холл 27.8 кв м. Сразу с правой стороны расположены три спальни (7 кв м, 8 кв м и почти 9 кв м) и с/у 3 кв м с душевой кабиной. Холл плавно переходит в просторное помещение 37.8 кв м занимаемое кухней-гостиной, между которыми размещён камин. Через распашные двери из зоны кухни можно выйти на небольшое крыльцо 4.5 кв м, накрытое так же как и терраса одной крышей с домом. С крыльца предусмотрен вход в котельную, в которой можно поставить эл. котёл для отопления дома.

Небольшой одноэтажный деревянный дом подойдёт для круглогодичного проживания семьи из 2-3 человек.

Аккредитованы в ведущих банках

Корзина
Ваша корзина пуста
Выберите в каталоге интересующий товар и нажмите кнопку "В корзину"
Отложенные товары
Отложенных товаров нет
Выберите в каталоге интересующий товар и нажмите кнопку "В избранное"
Заказать звонок