Проекты домов Оформить
ипотеку
Стройматериалы Участки Строительство
Выберите свой регион строительства
Крымский федеральный округ
Крым
Close mobile menu

Характеристики дома:

Площадь дома

112 m2

Кол-во жилых комнат

4
Стоимость проекта АР+КР
41,700 ₽

Хотите изменить планировку?

Отправьте запрос архитектору и обсудите с ним ваши идеи по перепланировке.

О проекте

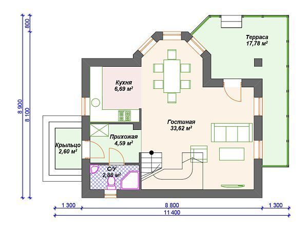
S4-112 (К-266) Дом общей площадью 112 кв м. Габариты дома - 8.90х11.40 м. Дом прямоугольной формы с эркером, выполнен из газобетона, толщиной 400 мм с облицовкой наружных стен штукатурка. Строительство здания осуществляется на фундаменте - монолитная плита. Перекрытие 1 эт - по плите, 2 эт - по деревянным балкам. Покрытие кровли - металлочерепица. Конструкция крыши - двускатная. Вход в дом осуществляется с небольшого крыльца накрытого односкатной крышей. Заходим и попадаем в прихожую, в которой сразу по левую руку расположен шкаф для одежды, а с правой стороны дверь в с/у с небольшим окном, площадью почти 3 кв м. Далее проходим в просторную светлую гостиную 33.6 кв м, в которой сразу по правой стороне находится п-образная лестница. Кухня 6.6 кв м является одним объединенным помещением с гостиной. ростую прямоугольную форму дома украшает эркер, который располагается в гостиной и кухне и тем самым не только увеличивает площадь, но и служит украшением дома. Обеденная зона находится в эркере, что очень красиво и практично. Из гостиной можно выйти на г- образную террасу 17.7 кв м. Поднимаясь по лестнице на 2-ой этаж, попадаем в небольшой холл, из которого можно пройти в любую из 3-х спален. Спальни небольшие, две равноценные по площади 11.6 кв м с выходом на балкон и одна спальня 7 кв м рассчитана под односпальную кровать. Так же на этаже имеется с/у 7 кв м. Небольшой дом с интересной архитектурой прекрасно подойдёт для проживания семьи из 3 человек.

Аккредитованы в ведущих банках

Корзина
Ваша корзина пуста
Выберите в каталоге интересующий товар и нажмите кнопку "В корзину"
Отложенные товары
Отложенных товаров нет
Выберите в каталоге интересующий товар и нажмите кнопку "В избранное"
Заказать звонок