Проекты домов Оформить
ипотеку
Стройматериалы Участки Строительство
Выберите свой регион строительства
Крымский федеральный округ
Крым
Close mobile menu

Характеристики дома:

Площадь дома

283 m2

Кол-во жилых комнат

6+
Стоимость проекта АР+КР
88,300 ₽

Хотите изменить планировку?

Отправьте запрос архитектору и обсудите с ним ваши идеи по перепланировке.

О проекте

S3-283 (Zx130) - Любители современной и необычной архитектуры обязательно оценят этот проект. В нем проектировщики отошли от популярной сейчас концепции открытых пространств. Помещения в дневной зоне отделены друг от друга перегородками, что позволяет комфортно проводить время большой компании. 

На первом этаже коттеджа расположен двойной гараж с отдельной кладовой и выходом в котельную, а также дверью в дом. Гостиная находится в дальней части дома и имеет панорамное остекление трех стен из четырех. Две двустворчатые двери напротив друг друга позволяют объединить это пространство с террасой. 

Столовая и кухня находятся в выделенном помещении. Их можно разделить перегородкой и скрыть процессы приготовления пищи. Для хранения запасов хозяйка сможет пользоваться кладовкой. А для решения деловых вопросов предусмотрен кабинет. 
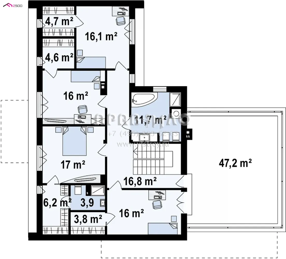
На втором этаже находится четыре спальни с собственными гардеробными. 

Аккредитованы в ведущих банках

Корзина
Ваша корзина пуста
Выберите в каталоге интересующий товар и нажмите кнопку "В корзину"
Отложенные товары
Отложенных товаров нет
Выберите в каталоге интересующий товар и нажмите кнопку "В избранное"
Заказать звонок