Проекты домов Оформить
ипотеку
Стройматериалы Участки Строительство
Выберите свой регион строительства
Крымский федеральный округ
Крым
Close mobile menu

Характеристики дома:

Площадь дома

189 m2

Кол-во жилых комнат

5
Стоимость проекта АР+КР
58,100 ₽

Хотите изменить планировку?

Отправьте запрос архитектору и обсудите с ним ваши идеи по перепланировке.

О проекте

S3-189-5 (Z162 GLv2) - Компактный вариант дома правильной формы с мансардой и гаражом на одно машино-место.
Фасад с деревянными элементами, выполненный в классическом стиле, отвечает всем требованиям современного строительства. Тут достаточно технических и хозяйственных помещений, а выход из гаража есть прямо в дом.

Одно из преимуществ этого проекта то, что на первом этаже запланирована комната под кабинет или гостевую. Еще тут есть просторный санузел, небольшая кухня линейного типа с отдельной кладовой и гостиная с камином и столовой зоной.

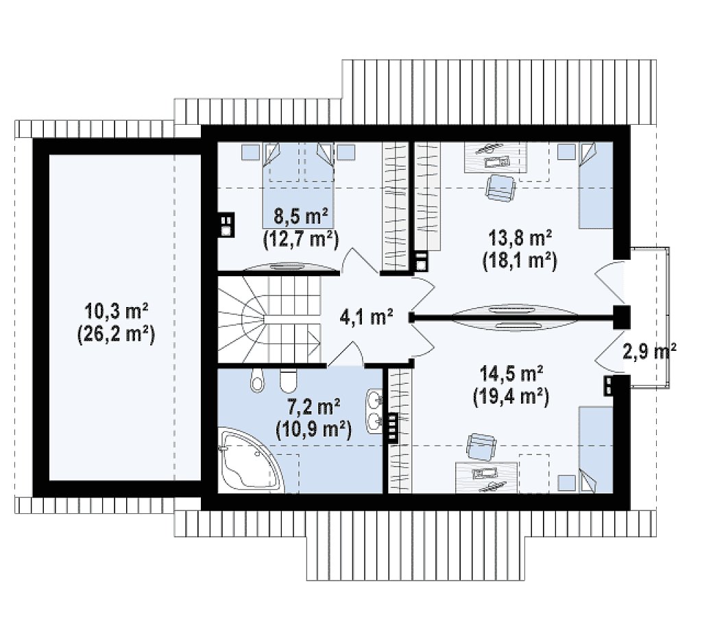
Мансарда состоит из трех спален и функционального санузла. Из двух самых больших комнат есть выход на балкон.
Преимущества:
• двускатная крыша и простая конструкция делает строительство экономным, а эксплуатацию несложной;
• санузлы расположены друг над другом, что тоже удешевляет смету;
• большие площади остекления делают дом светлым и уютным;

Отличный вариант для семьи из 4-5 человек с небольшим бюджетом для сметы.

Дизайн интерьера

Понравился этот дом?

Отправьте нам сообщение, и мы ответим на все интересующие вас вопросы.

Аккредитованы в ведущих банках

Корзина
Ваша корзина пуста
Выберите в каталоге интересующий товар и нажмите кнопку "В корзину"
Отложенные товары
Отложенных товаров нет
Выберите в каталоге интересующий товар и нажмите кнопку "В избранное"
Заказать звонок