Проекты домов Оформить
ипотеку
Стройматериалы Участки Строительство
Выберите свой регион строительства
Крымский федеральный округ
Крым
Close mobile menu

Характеристики дома:

Площадь дома

146 m2

Кол-во жилых комнат

4
Стоимость проекта АР+КР
58,100 ₽

Хотите изменить планировку?

Отправьте запрос архитектору и обсудите с ним ваши идеи по перепланировке.

О проекте

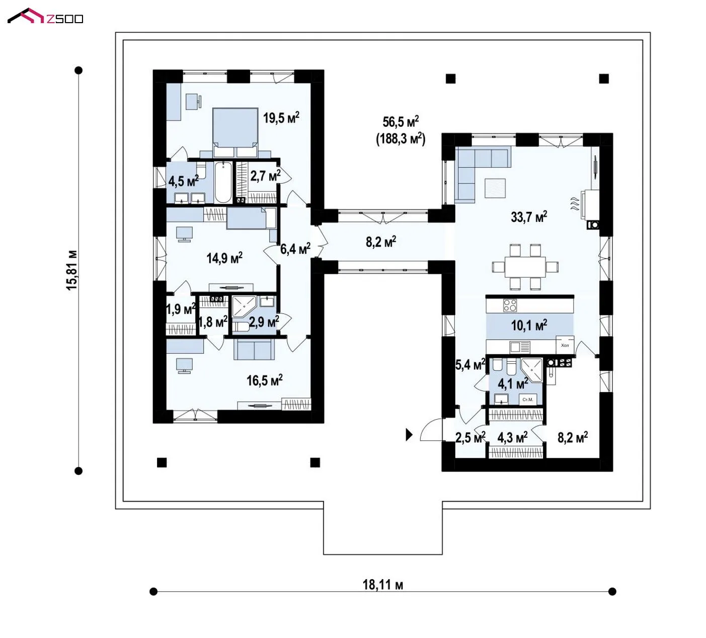
S3-146-1(Z449) - Проект этого одноэтажного дома привлекает своим современным стилем и строгой элегантностью цветовых решений. Он идеально подойдет для проживания семьи из 3-4 человек.

В дневной зоне дома расположилась гостиная с камином, призванным добавить тепла и уюта зимними вечерами. К гостиной прилегает кухня и санузел с душевой кабиной. Из гостиной обустроен выход на просторную веранду, которая станет прекрасным местом для отдыха в теплое время года. Из гостиной можно попасть и под навес, рассчитанный на два автомобиля. 

Ночная зона дома представлена двумя спальнями и дополнительной комнатой, которую можно в зависимости от Ваших нужд оборудовать в кабинет или в дополнительную спальную комнату. Родительская спальня полностью автономна: в ней есть и собственная ванная комната, и гардероб, и выход на террасу. Выход на террасу и гардероб имеется и у второй комнаты. В этой части дома предусмотрен еще один общий санузел с душевой кабиной. 

3D Модель

Аккредитованы в ведущих банках

Корзина
Ваша корзина пуста
Выберите в каталоге интересующий товар и нажмите кнопку "В корзину"
Отложенные товары
Отложенных товаров нет
Выберите в каталоге интересующий товар и нажмите кнопку "В избранное"
Заказать звонок