Проекты домов Оформить
ипотеку
Стройматериалы Участки Строительство
Выберите свой регион строительства
Крымский федеральный округ
Крым
Close mobile menu

Характеристики дома:

Площадь дома

111.2 m2

Кол-во жилых комнат

3
Стоимость проекта АР+КР
41,400 ₽

Хотите изменить планировку?

Отправьте запрос архитектору и обсудите с ним ваши идеи по перепланировке.

О проекте

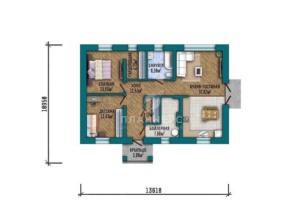
Проект 424-111-1 — современный одноэтажный дом без мансарды, предназначенный для комфортного проживания семьи. Дом сочетает функциональную планировку, надежные материалы и открытую террасу, что делает его идеальным решением для загородного участка среднего размера.

Конструктивные решения и материалы

Фундамент дома — монолитный ленточный, обеспечивающий прочность и долговечность конструкции.

Наружные стены выполнены из керамических блоков с облицовочным кирпичом, что придает дому современный и выразительный вид, обеспечивает отличную теплоизоляцию и долговечность. Внутренние несущие стены и перегородки выполнены из полнотелого керамического кирпича, обеспечивая прочность и надежность конструкции.

Цоколь облицован клинкерным кирпичом, устойчивым к влаге и механическим воздействиям. Чердачные перекрытия выполнены по деревянным балкам, а перемычки — монолитные, повышающие жесткость конструкции. Утепление стен и ограждающих конструкций производится по теплотехническому расчёту с учетом климата, обеспечивая комфортную температуру внутри дома круглый год.

Кровля и архитектура

Дом имеет комбинированную крышу, покрытую металлочерепицей, что гарантирует долговечность, надежность и современный внешний вид. Карнизы выполнены из профлиста с полимерным покрытием, а ограждения крылец и террасы — из металла и стекла, создавая легкий и современный архитектурный акцент.

Терраса предоставляет удобное пространство для отдыха на свежем воздухе и общения с семьей.

Для кого подходит проект дома 424-111-1

Проект станет отличным выбором для тех, кто ищет:— одноэтажный дом с террасой;— современный дом с комбинированной крышей;— коттедж из керамических блоков с облицовочным кирпичом;— энергоэффективное и долговечное жильё для семьи;— комфортный загородный дом с двумя спальнями и одним санузлом.

Проект 424-111-1 сочетает стильный фасад, продуманную планировку и качественные материалы, создавая удобное и долговечное пространство для жизни.

Аккредитованы в ведущих банках

Корзина
Ваша корзина пуста
Выберите в каталоге интересующий товар и нажмите кнопку "В корзину"
Отложенные товары
Отложенных товаров нет
Выберите в каталоге интересующий товар и нажмите кнопку "В избранное"
Заказать звонок